開關
網站導覽
回首頁
語言
中文
English
關於我們
經營理念
ESG永續發展
交通資訊
周邊住宿
設施與服務
場館管理
公告消息
公告新聞
影音專區
活動行事曆
精彩活動集錦
台灣會展
場地導覽
場地介紹
場地查詢
大會堂座位查詢
VR實境
檔期查詢
預約洽訂
租金試算
線上洽詢
常見問題
餐宴服務
出租服務
攝影棚出租
廣告出租
資源下載
價目表
詳情與租借規範
檔期
查詢
線上
洽詢
VR
實境
活動
行事曆
Top
Taipei
International
Convention Center
預約編號登入
Login
大會堂座位圖查詢
Search
首頁
資源下載
詳情與租借規範
回上一頁
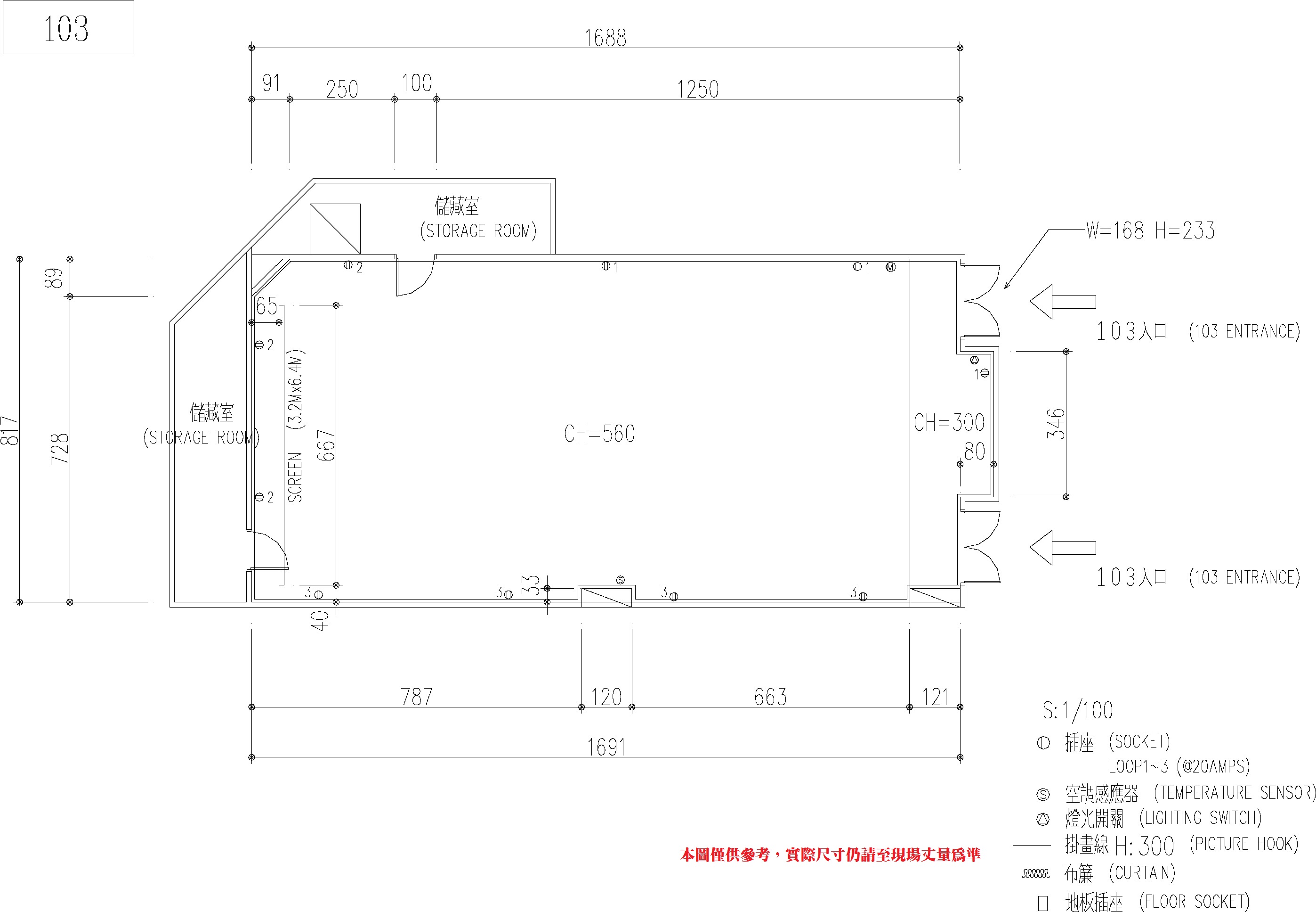
103
發布日期:2022/09/01
點閱次數:2
103
相關照片
103.jpg
Powered by
SeaChat
from
Seasalt.ai
.
回頁首